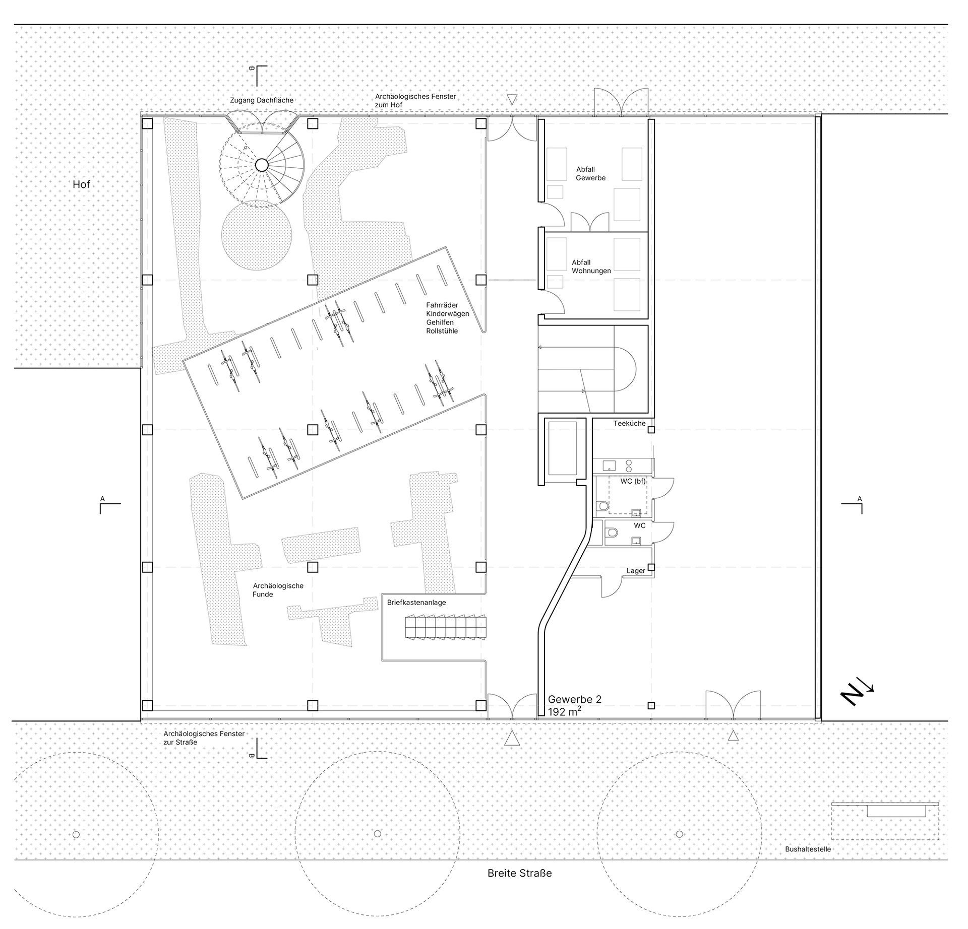
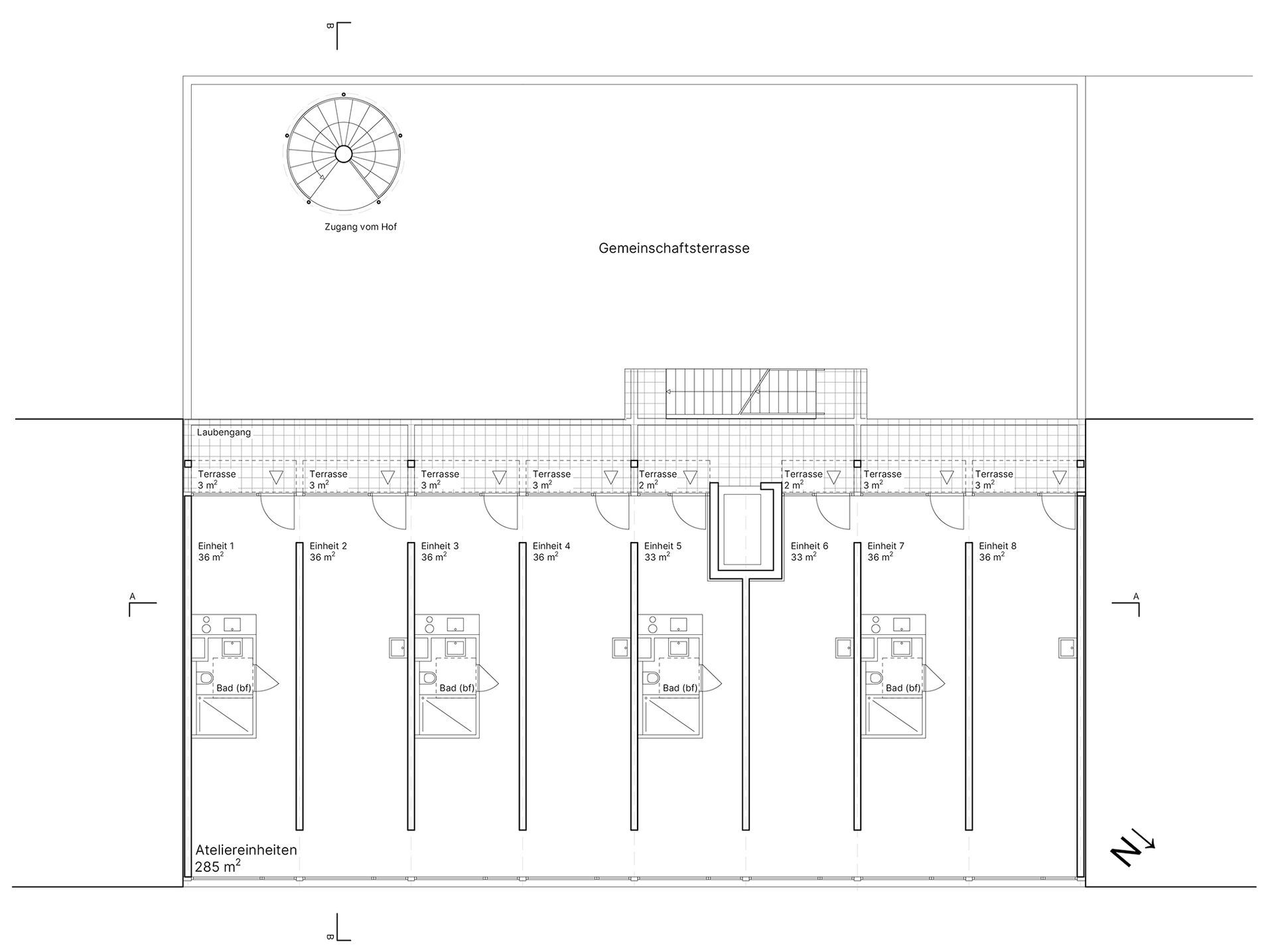
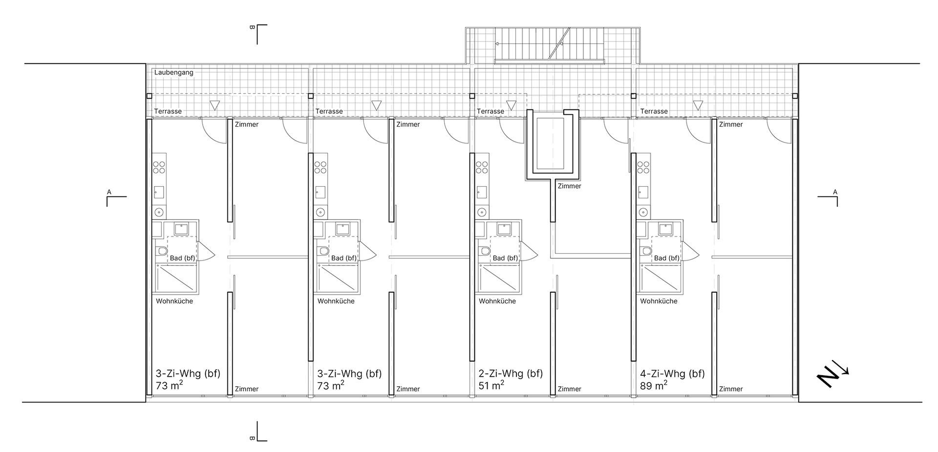
ATELIERHAUS
2024 / Housing+ / 2.530m2 / Berlin (D) / with UHO & asbr
Competition for an "Atelierhaus" in Berlin-Mitte next to the new Stadtschloss.
6 floors of flexible studio spaces for artists, creative industries and communal living, flexible ground floor space, integration of archeological findings and a communal roof terrace/balconies.













