STADTHAUS BERLIN
2024 / Housing+ / 2934m2 / Berlin (D) / with
UHO &
asbr
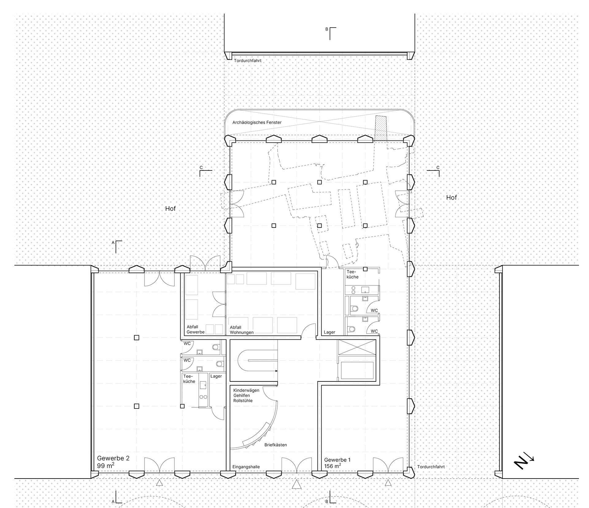
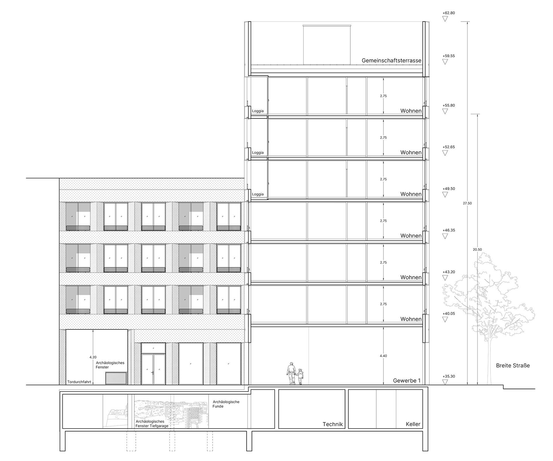
Competition for a "Stadthaus" in Berlin-Mitte next to the new Stadtschloss.
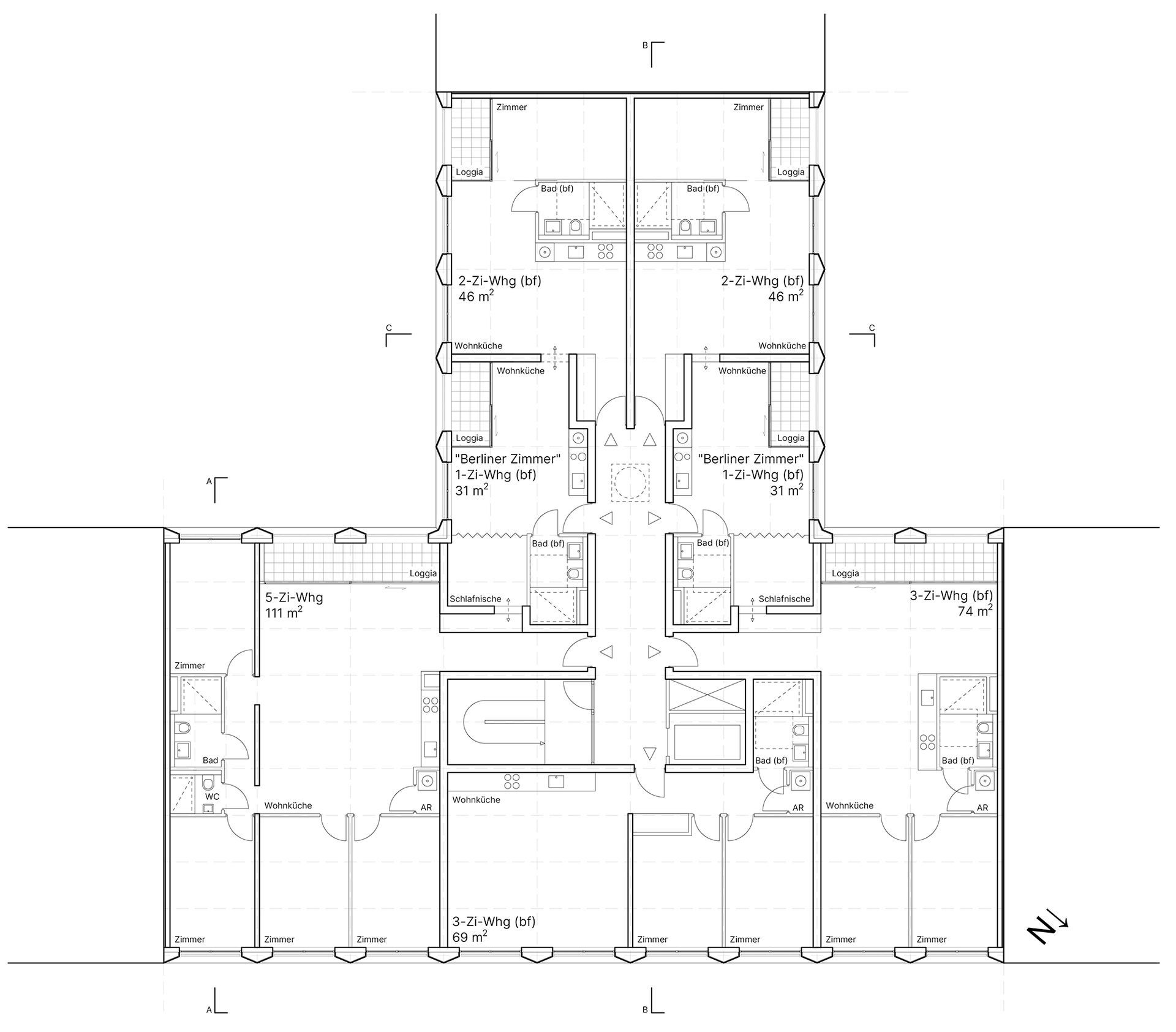
24 apartments, 6 “Berliner Zimmer”, 2 flexible ground floor spaces, integration of archeological findings and a communal roof terrace “Der Himmel über Berlin”.











